Work
About
Contact
Ella Eklund Architect SAR/MSA Exhibition Design, Scenography, Arts and Crafts
Work
About
Contact
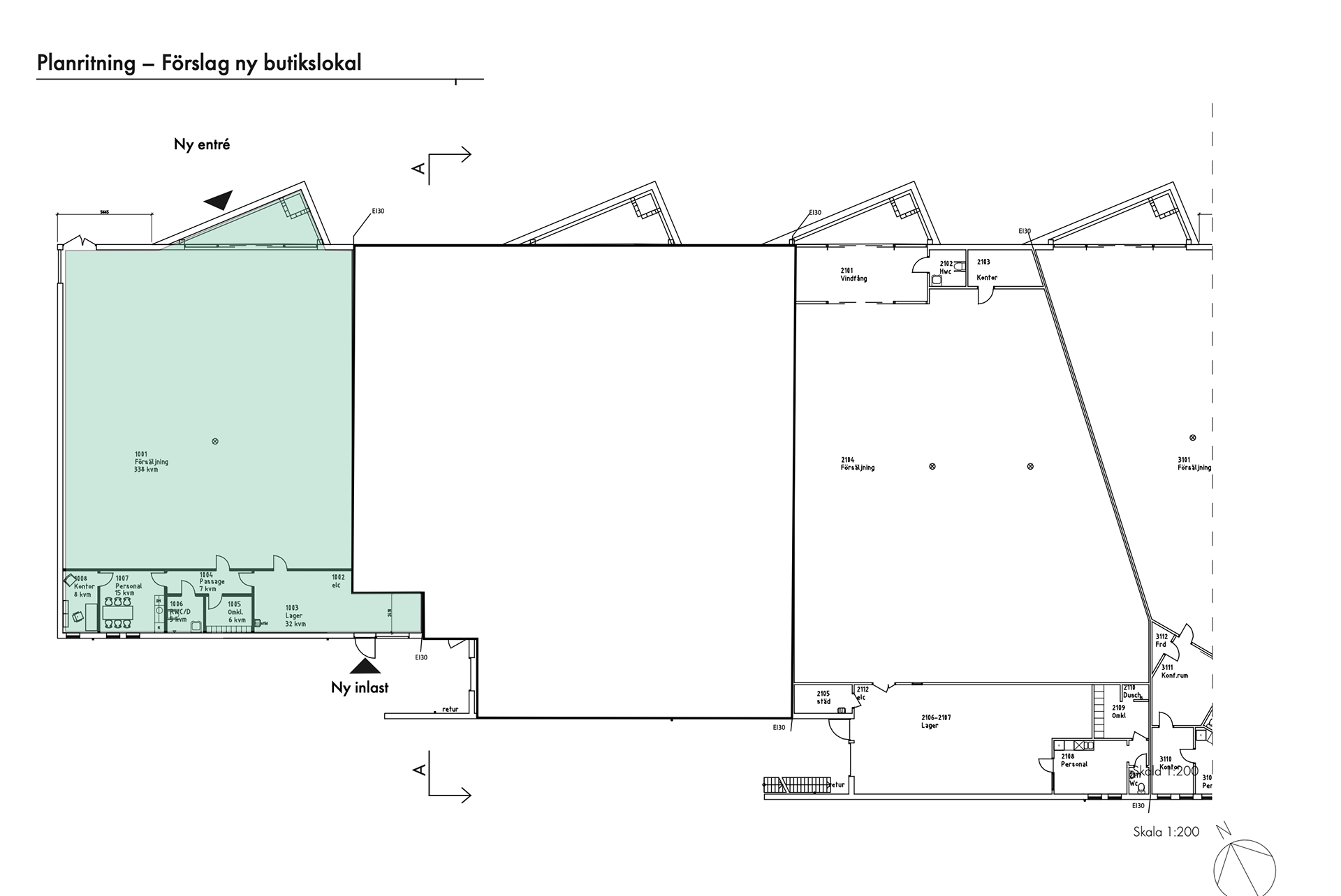
Architecture Project Retail Block
Tenant Improvements in Retail block, Visby.
Lead Architect Lena Zetterberg
Project Architect Ella Eklund
© Ella Eklund. All rights reserved
↑
Back to Top