Architecture project Structure Place Activity
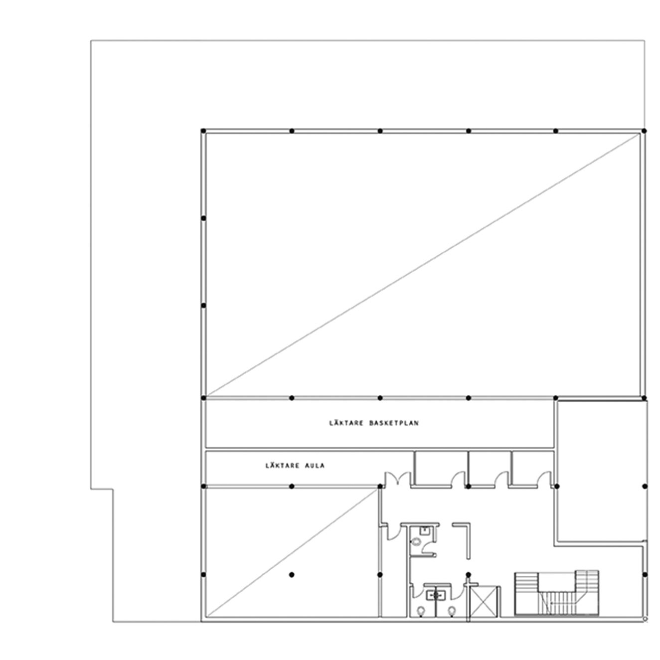
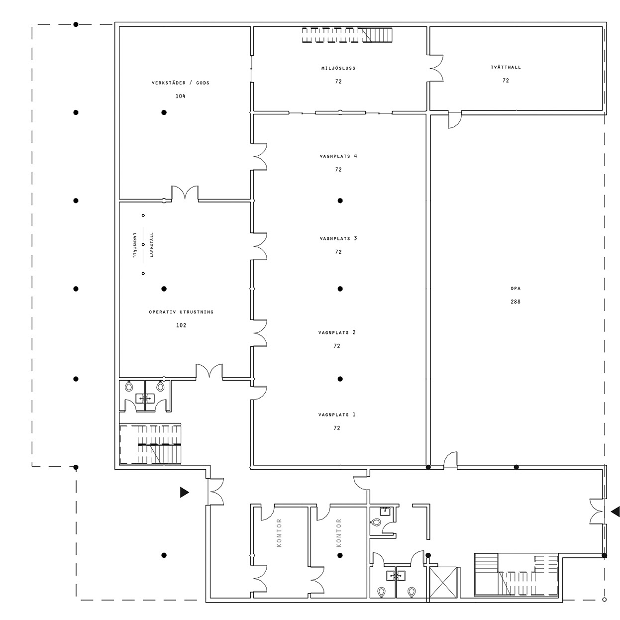
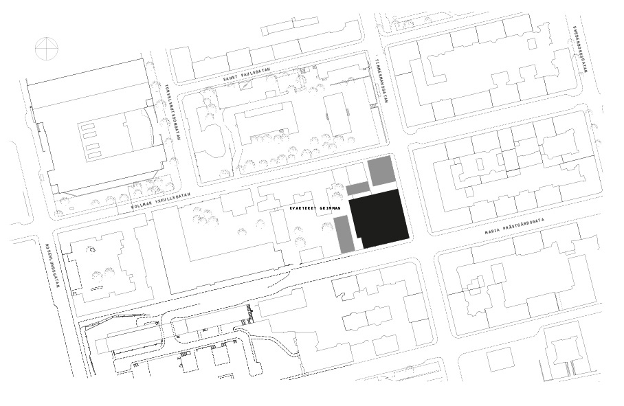
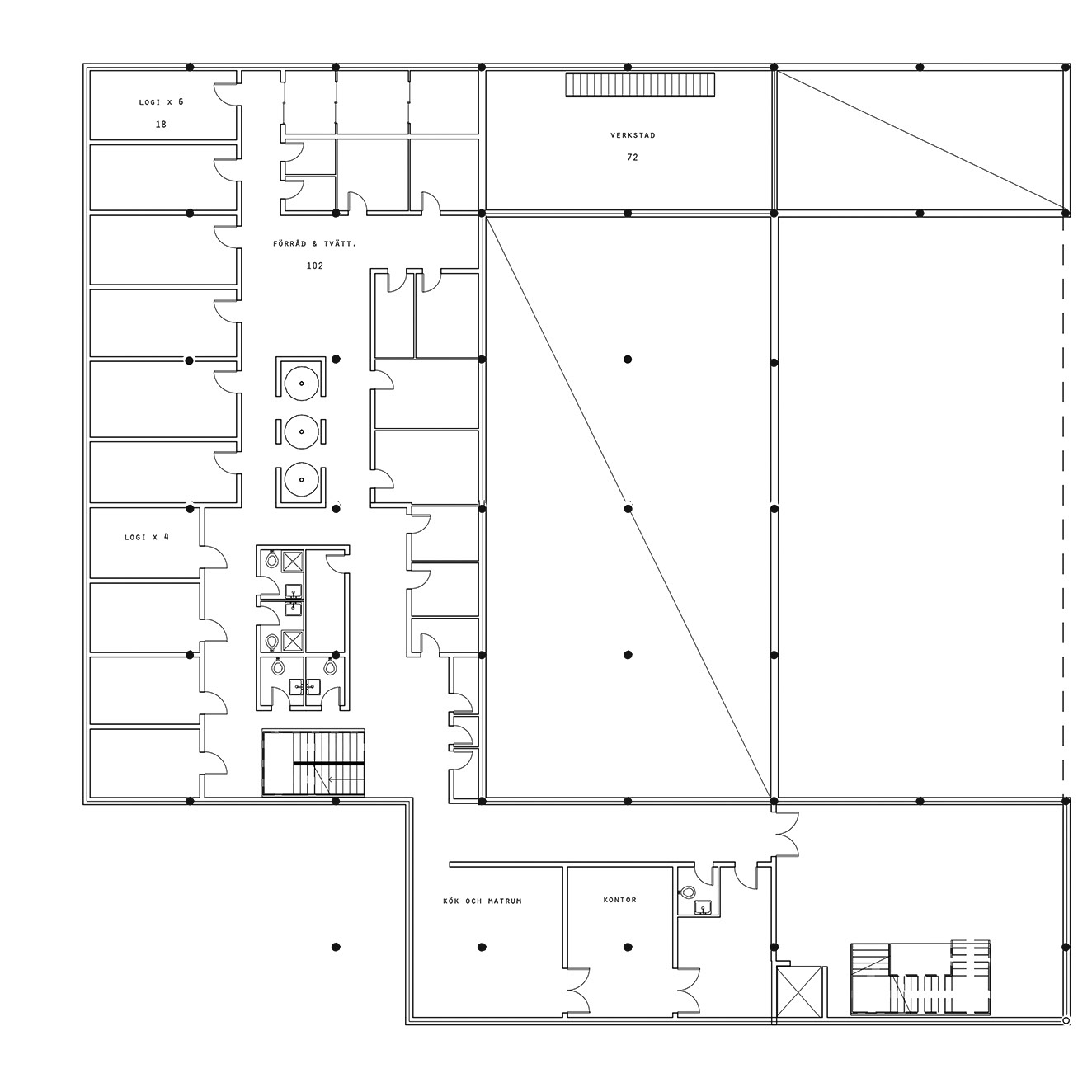
This project proposes a fire station with four vehicle bays and a public sports hall of a total approx. 3,000 m² in central Stockholm. The design responds to the block’s historic façades and urban character while integrating future housing, services, and activity spaces.
The building’s volume is shaped by the spatial requirements of the halls, employing a three-dimensional property strategy to allow for additional structures and phased development. A key consideration, enabling potential adaptive reuse.
A column-beam system forms the structural framework, while physical models, hand-drawn sketches, and a Revit 3D model guided the design exploration.


References pictured above is: Young Disabled Modules and Workshop Pavilions by José Javier Gallardo Ortega from studio g.bang. Ecology of Colour, Nous Vous and Studio Weave. Fasader RT2.
Palais de Tokyo, Lacaton & Vassal. Storefront for Art and Architecture, Stephen Holl. FaiFah Prachautis Learning Centre Bankok, Spark. Didden Village, MVRDV
Back to Top