Work
About
Contact
Ella Eklund Architect SAR/MSA Exhibition Design, Scenography, Arts and Crafts
Work
About
Contact
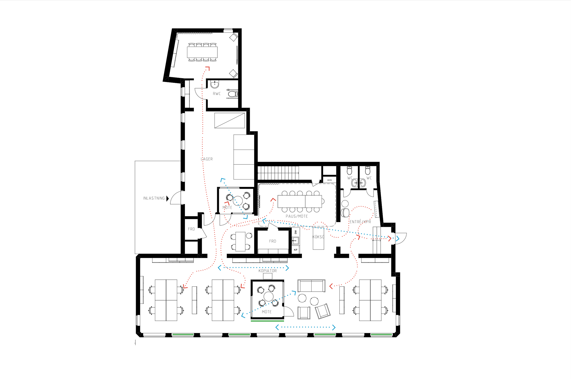
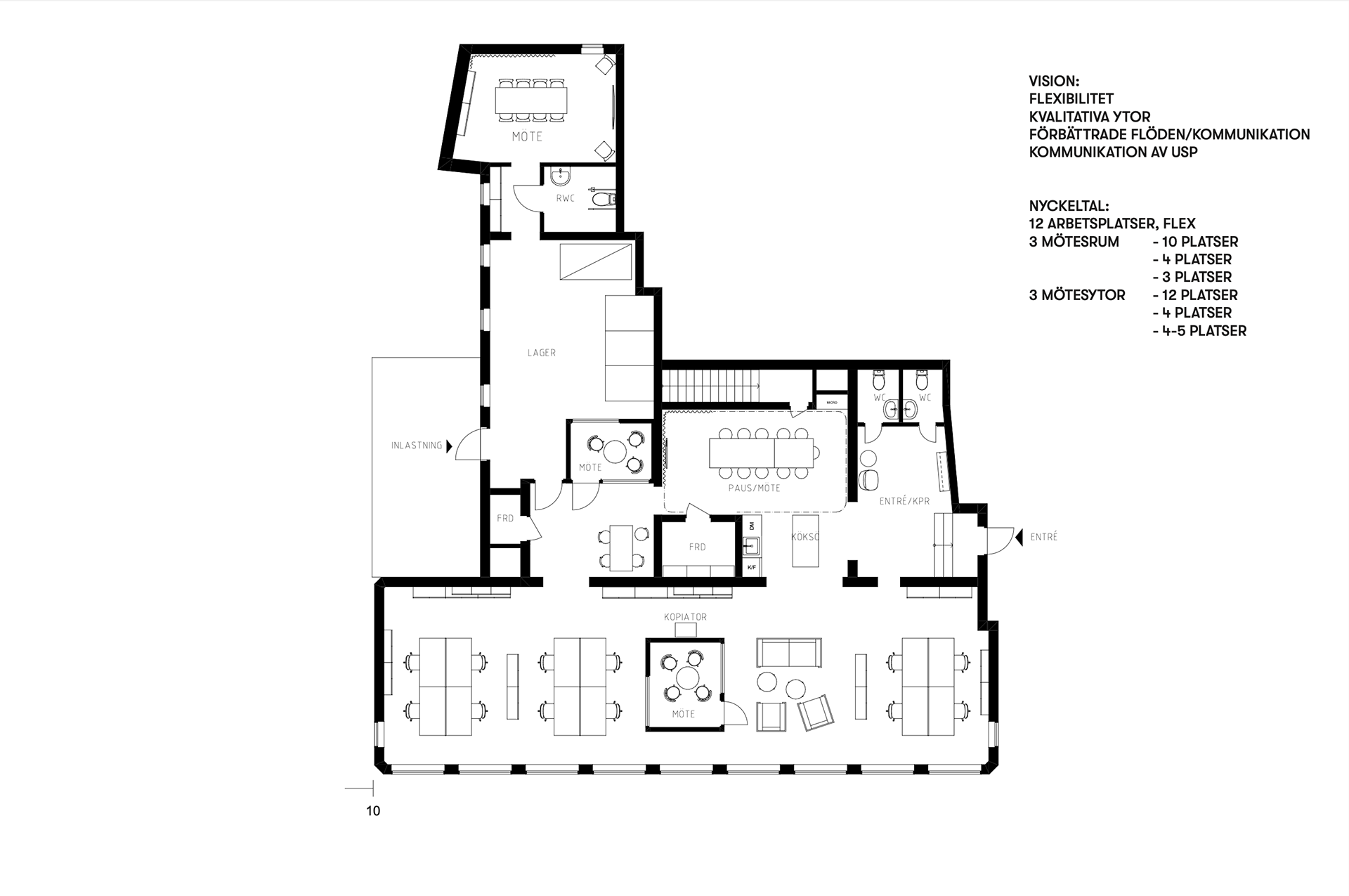
Architecture Project Tenant Improvements
Climapac. Tenant Improvements. Full tenant fit-out, including interior layouts, finishes, and technical installations tailored to the client’s needs.
Lead Architect Niklas Wahlstein
Project Architect Ella Eklund
© Ella Eklund. All rights reserved
↑
Back to Top